FIND YOUR SPACE

RIVERVIEW

1230 E Auer Ave.

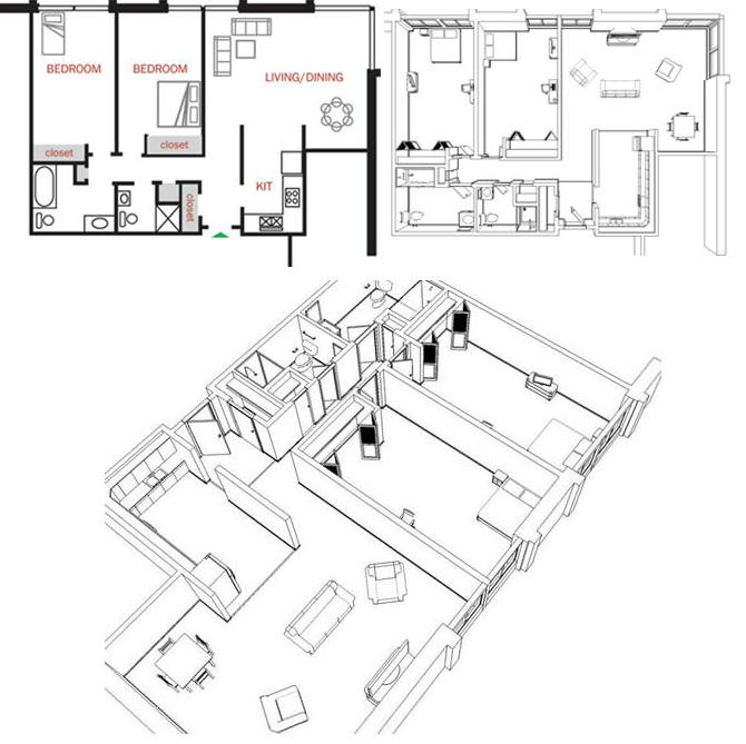
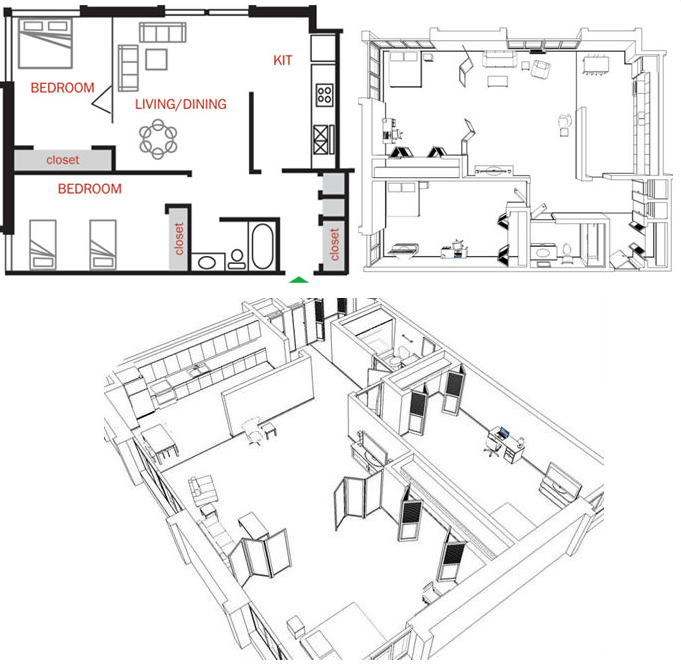
Floor Plans

Click on an image to open the photo gallery

Photo Gallery

Click on an image to open the photo gallery

FIND YOUR NEW HOME TODAY